(祝!)第13話 カフェオーナーが応援する、棚がいっぱいの元洋品店
「いつかこの人みたいになりたいなあ」と、あなたが心から尊敬できる人はいますか?
北山通と大宮通の交差点から少し下ったところに、食に関する商店がちらほらと並ぶ通があります。
ここはかつて大きなオモチャ屋さんがあり、近隣に住むファミリー層で賑う、活気ある地域でした。
以前と比較すると人通りは少ないものの、最近また新しい店舗が入りはじめるなど
町に新しい賑わいの兆しが見えはじめています。この町に、スイーツとパスタが人気の愛らしいカフェがあります。
尊敬する大切な人たちの背中を追いかけて
今回、物件をご紹介くださる家主さんは、その「03 slow cafe(マルサンスローカフェ)」を運営する
オーナー丸沢 良(まるさわ りょう)さんです。2006年に独立して、この03 slow cafeを開業しました。
喫茶店を営む父親の背中を見て飲食業の道を選択することを決め、製菓の専門学校で洋菓子づくりなどを勉強。
卒業後、ケーキとパスタが人気の飲食店に長く勤務しました。その時のオーナーが今でも丸沢さんにとって
いつかこの人の背中に追いつきたいと思える尊敬する人生の師匠なのだといいます。
開業当初の苦労を知るからこそ、同業者だとしても力になりたい
「まるさん」と呼ばれるニックネームと、訪れた人へゆっくり安らぐ時間を届けたいという想いから
今の屋号を名付けました。開業当初は、地域に馴染んで常連さんができるまでやはり苦労もあったそう。
真面目にコツコツ続けることで地域のひとのあたたかさに支えられ
3年目頃からようやく集客も安定。今では時々テレビで取材もされています。

今回紹介する物件に対して「ぜひ若い方に入っていただき新しい事業をはじめてほしい。
業態は問わないし、同業でも構いません。開業したとき自分が体験した知識や経験で
何かサポートしてあげられたら良いなあと思っています」と丸沢さんはお話くださいました。
師匠という先人の重要さや有難さを体感している、丸沢さんならではの台詞ではないでしょうか。
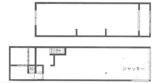
あちこち棚でいっぱいの元洋品店
そんな丸沢さんが今回ご紹介くださるのは、以前までおばあさんが持ち主となっていた空き家。
03 slow cafeと同じ通りで、歩いてすぐの場所に位置しています。
過去30年以上もの間、ご夫婦が洋品店(洋服屋)として利用していた二階建ての一軒家です。
昭和初期に建てられた建物のようですが、外観からはそれほど古さは感じられません。
こちらの左側の白い建物です。
通りに面したシャッターをあげると、奥まで広い空間がまっすぐのびています。
とても面白いことに、壁を縦に走っているのは、全て棚を設置するためのラック掛け。
専用の部品を買えば、1階あらゆるところに好きな形で棚が設置できてしまうのです。
棚がいっぱい必要だった元洋服屋さんならではのつくりですね。
ガラス張りのショーケースも1つ残っています。
一階の一番奥にある扉を開けると、コンクリートの土間庭になっています。
右手のお手洗いは男女に分かれており、奥には以前まで地蔵さまがあったであろう名残りがあります。

ここにも一つ倉庫のような部屋があり、この中にも棚がいくつか残っています。
さて、二階にあがってみましょう。階段横にも階段登り口にも棚が並んでいます。
この物件、よく見ると本当にあちこち棚になっているんです。
二階には、木でつくった棚が全面的にずらりと並んでいます。
壁に寄り添った棚だけでなく、部屋のど真ん中に木で組まれた棚が、所狭しと並んでいます。
洋品店を営んでいた頃、洋服の在庫を二階で保管していたその名残りのようです。
室内が少し区切られており、ベランダのような小さなスペースも存在します。
ここまで棚があちこちに並ぶという非日常的な空間は、なかなか見応えがあります。
二階の棚を全て分解して、床張りの木材として使用するのも一つかもしれません。
ですが、いっそこのまま棚を活かして、ギャラリー付きのカフェ、古着屋、陶器や雑貨の展示販売など
見て楽しめるようなお商売がはじめられたら、楽しいかもしれませんね。
思わず引っ越してきたくなる地域にしたい
丸沢さんは、新たな借り手と共に、住んでいる人達に愛されるような地域をつくっていきたいと考えています。
思わず引っ越したいなと思ってしまうような、魅力的なお店が並ぶ、明るい地域にしていきたいと。
開業を検討中の方で、この想いに共感される方がいらっしゃいましたら、ぜひ一度お問い合わせください。
もしかしたら次は丸沢さんの背中が、あなたにとっての心から尊敬する背中になるかもしれません。
穏やかな丸沢さん、趣味は意外とバイクで、北山の林道を一本ずつ制覇しているそう。
お休みの日は、鹿に出逢いながら山の中で珈琲を淹れて、ひとりふわりと考え事をすることが好きだといいます。
趣味が近い方がもし居らっしゃれば、なおさらお気持ちが合うかもしれませんね。
(ライター:FootPrints 前田 有佳利)
| こんな人にオススメ | ギャラリー付きのカフェ、古着屋、陶器・雑貨の展示販売など、棚を活かした商売をはじめたい人 |
| 建物の詳細 | 築不詳(推定およそ築60年以上) / 木造二階建 / 棚が多い / 棚をつくるラック掛けが多い |
| 間取り | 1階 コンクリート床+倉庫(全約48.49㎡) 2階 板の間(全約39.07㎡) |
| 広さ | 約87.56㎡ |
| 初期費用(うち返金) | 賃料の3ヶ月分 |
| 月使用料 | 12万円 + 税 |
| 所在地 | 北区 |
| DIYレベル | ★★★★☆ |



















